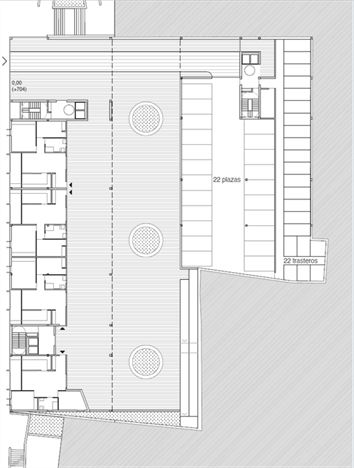
Concurso para 90 viviendas VPPMadrid
- Promotor:
- EMVS Madrid
- Arquitectos:
- José Luis Daroca Bruño y PRÁCTICA SL
- Jaime Daroca Guerrero
- José Mayoral Moratilla
- José Ramón Sierra y Gómez de León
- Localización:
- Parcela D2. Paseo de la Dirección, Madrid
- Fecha:
- 2025







